Апрель 2021 года
05.04.2021 г.
В Ижевске мы ввели в эксплуатацию двухэтажное офисное здание, расположенное в непосредственной близости с пересечением ул. Карла Маркса и ул. Чугуевского. По этому объекту наши архитекторы и конструктора готовили проектную документацию, а инженера занимались подготовкой документации для получения разрешения на ввод в эксплуатацию завершенного объекта.
20.04.2021 г.
Очень радостная новость сразу три наших проекта получили экспертное заключение по результатам санитарно-эпидемиологической экспертизы по установлению соответствия правилам и нормативам. Два проекта на смежные земельные участки по установлению санитарно-защитной зоны для склада по ул. Маяковского, 48 в городе Ижевске и проектная документация по установлению санитарно-защитной зоны для паркинга по ул. Союзная в городе Ижевске. На следующем этапе согласования нас будет ждать сам Роспотребнадзор по УР!
30.04.2021 г.
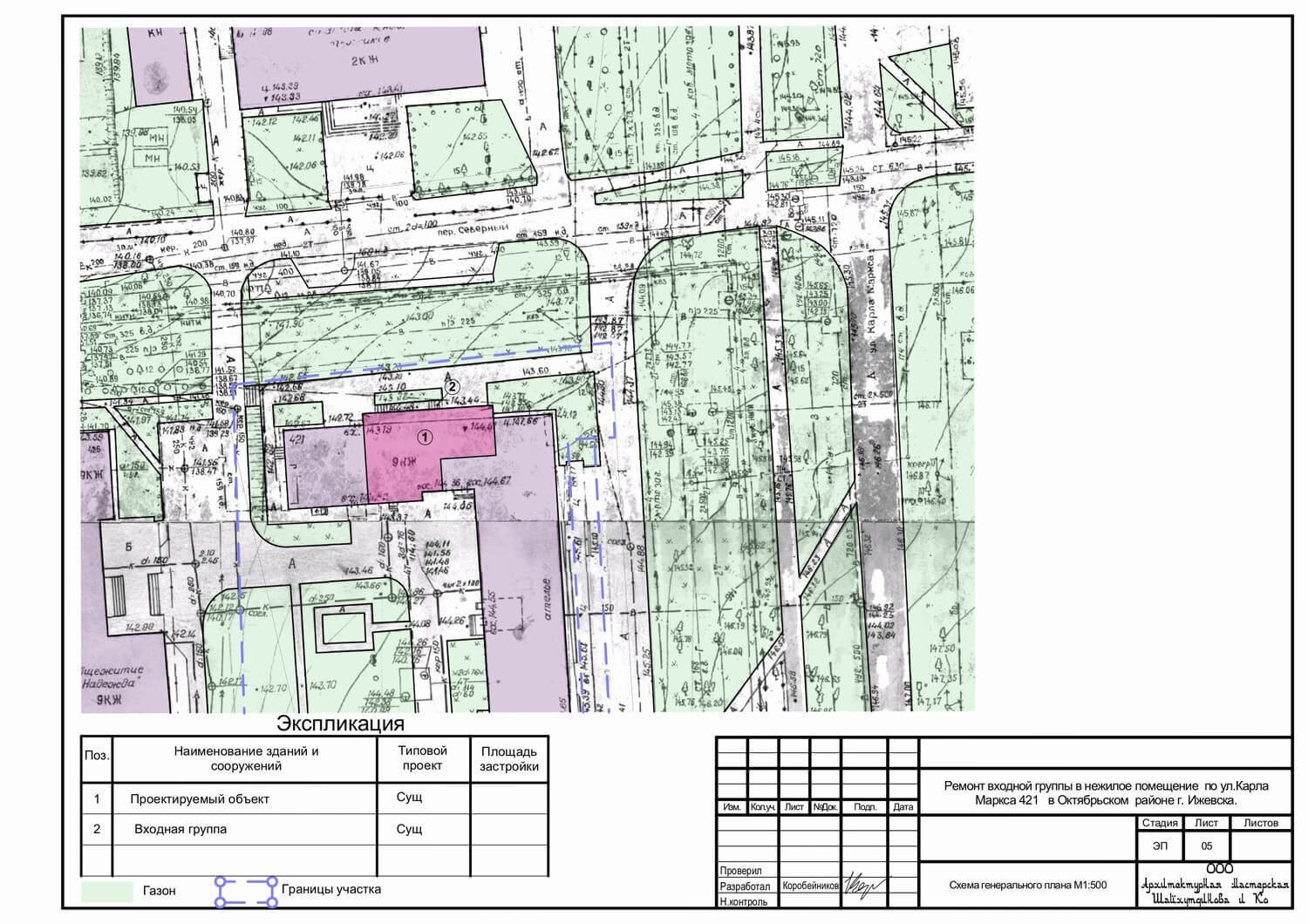
Мы разработали и согласовали с администрацией города Ижевска наш эскизный проект на ремонт входной группы в нежилое помещение по адресу: г. Ижевск, ул. Карла Маркса, 420. Еще на один симпатичный объект в городе станет больше.














