Главная / Новости на портале / Январь 2021 года
Январь 2021 года
13.01.2021 г.
Пока некоторые граждане отходили от новогодних праздников, мы успешно ввели в эксплуатацию очередное нежилое помещение при переводе из жилого в городе Ижевске по ул. Садовая, 1.
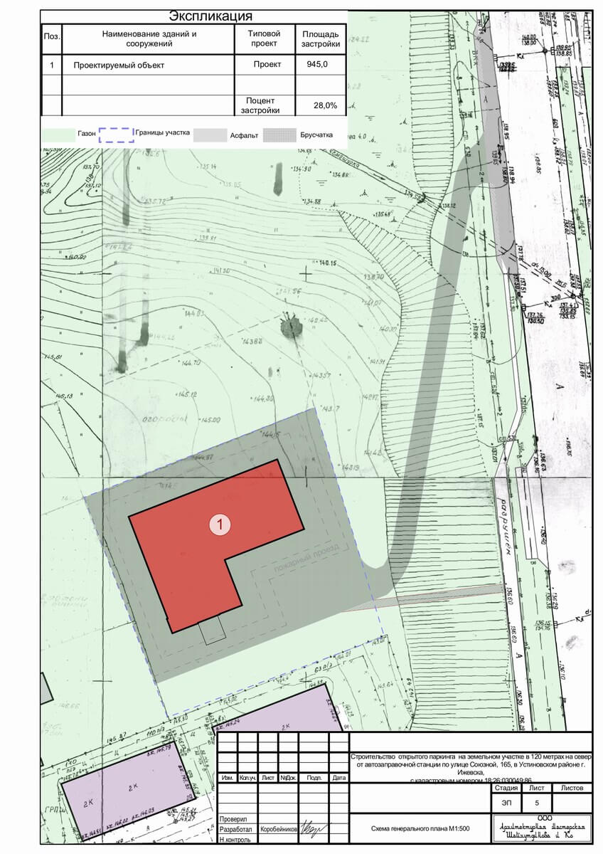
29.01.2021 г.
Нами был разработан эскизный проект и согласован в архитектуре города Ижевска для строительства открытого паркинга по ул. Союзная.







